- Accueil
- Jumelé modèle Émeraude 2025










Rue Jeanne-Mance
Windsor, Qc.
Projet domiciliaire: Quartier des Papetiers
Modèle: Émeraude
Type de propriété: Jumelé
Superficie du terrain: 400m2
Dimensions: 24′ x 40′
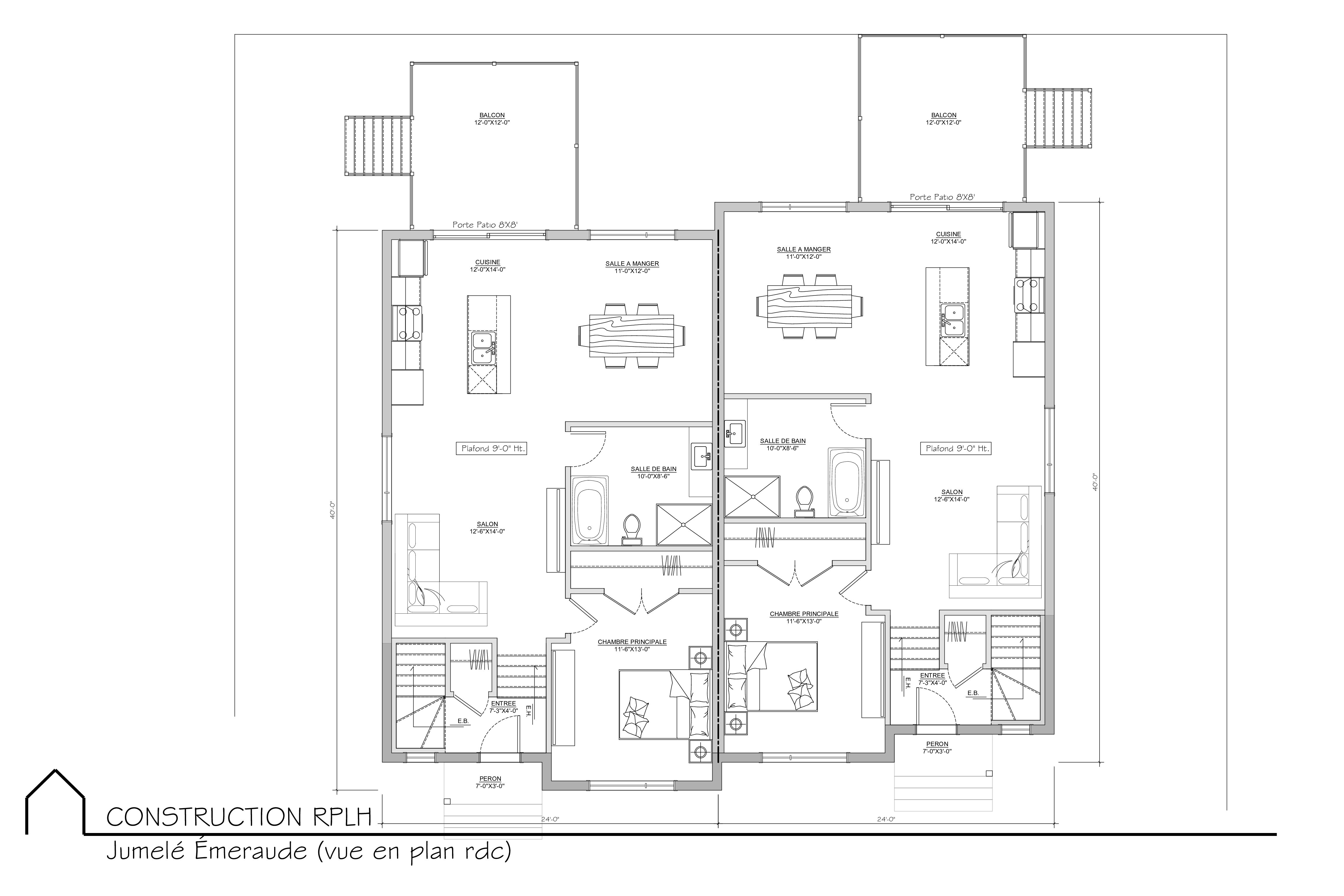
Aire habitable: 960pi2
455000$
Taxes, Terrain inclus et Sous-sol aménagé
- 3 chambre(s) à coucher
- 2 salle(s) de bain
Jumelé plein pied, avec sous-sol complètement aménagé.
Prix : 455 000 $ Taxes et terrain inclus
Situé dans le nouveau développement du Quartier des Papetiers a Windsor, il allie confort, proximité des services et de la nature.
Au Rez de chaussé : Une chambre, une salle de bain complète, espace de vie ouvert, lumineux avec plafond de 9 pied, grande porte patio de 8×8 avec un balcon de 12×12. Thermopompe 12 000 BTU, aspirateur central, lumière encastré.
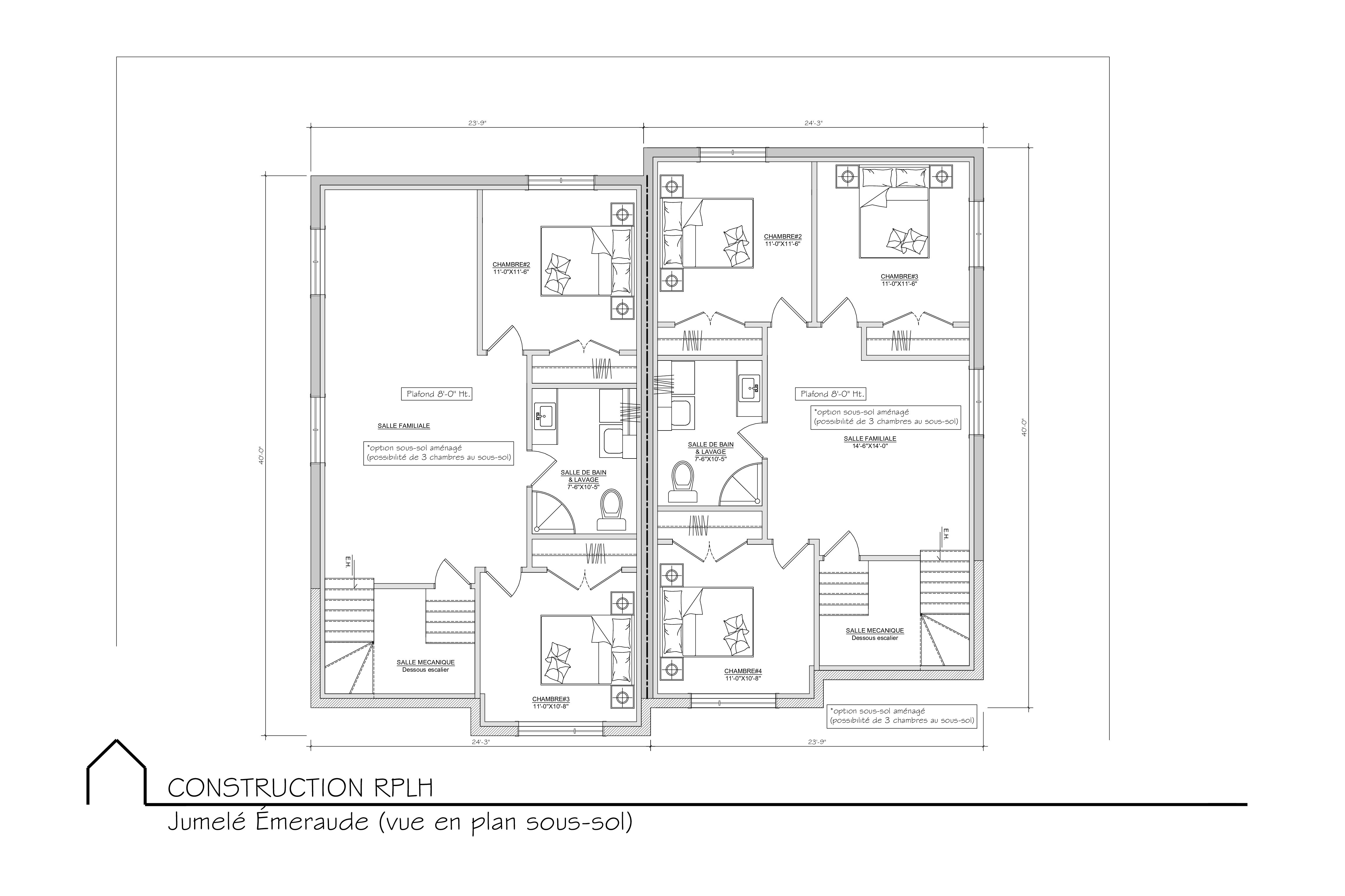
Au Sous-sol : possibilité de 3 chambres, une salle de bain complète avec la laveuse sécheuse.
N’attendez plus, venez personnaliser votre maison ! Projet disponible pour le printemps 2026.
Prix sujet à changement sans préavis. Les couleurs, les matériaux et les images intérieures peuvent différer.
Prix incluant les taxes de vente. Prix sujet à changement sans préavis. Les couleurs, les matériaux et les images intérieures peuvent différer.